The Story of the Queen/Trow/Ontario Project
THIS IS AN ARCHIVE PAGE, and may not be complete. If you need more information, please contact us.
Chancery Development, a subsidiary of Chancery Mendez Holdings Canada, is a Toronto developer who is asking the City of Stratford to change our Official Plan. They want Council to allow the destruction of three houses and the addition of apartment complexes on the Ontario Street heritage corridor, right next to the entrance to the Stratford Festival. The residents in this area are happy to see development, but they want good development. They have researched this company, and can find very little about it (the company is not connected with Chancery Seniors Housing, a builder of retirement homes). Residents want to know why it’s so important for this company to change the Official Plan, rather than just design buildings that fit in with the neighbourhood. The developer is asking for a change that would allow six storey buildings, even though their plan is for two 3 1/2 storey condominiums.
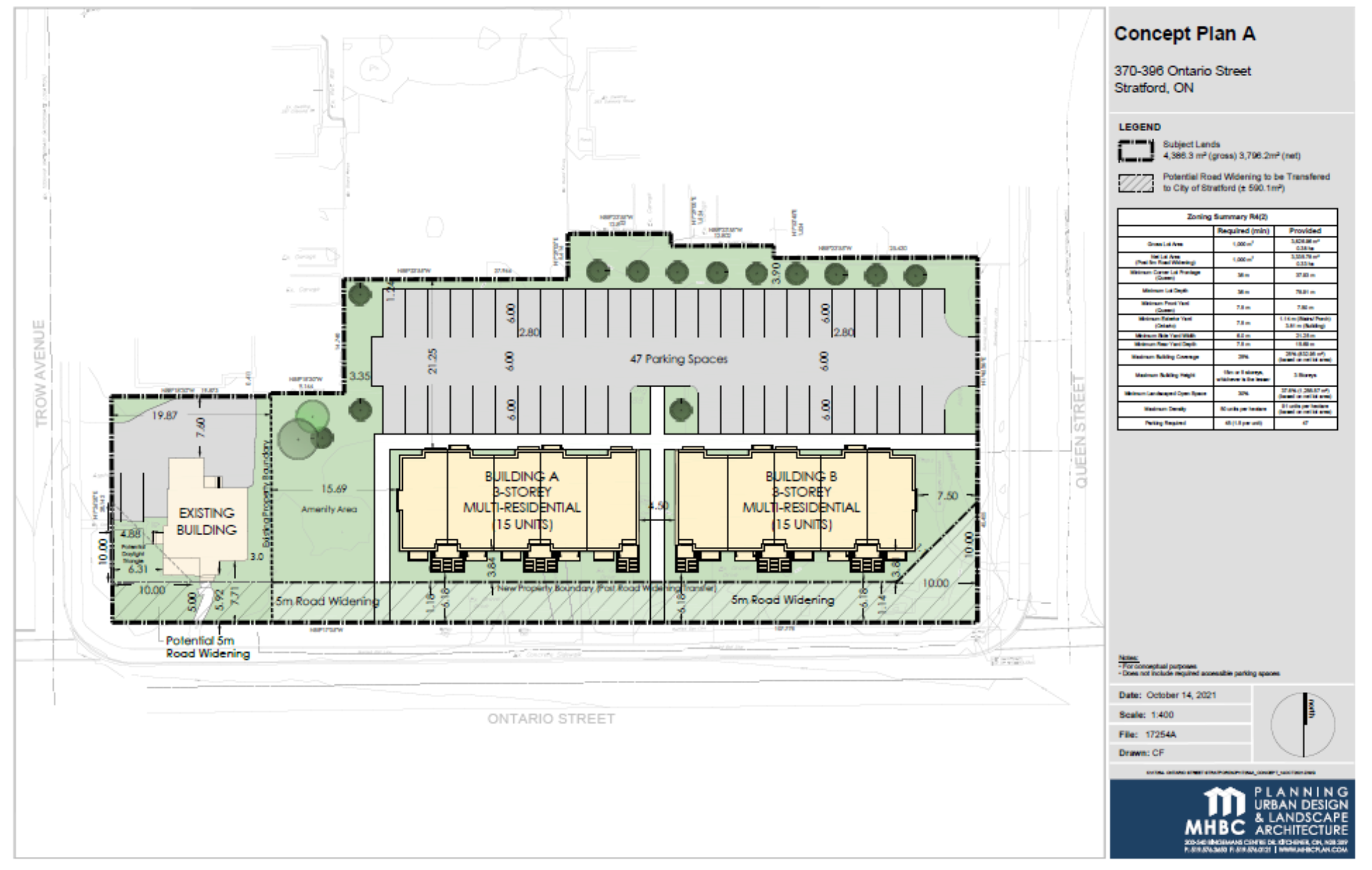
Here is the revised design of their proposal. Two side-by-side buildings would be built. Only the front view was provided to Council, and Council did not ask to see the rear view.
What’s the objection?
The biggest objection is that the developer wants a change to Stratford’s Official Plan. Changing the Official Plan could allow buildings of six storeys, although the company promises it won’t build this high. Changing the designation for that land also means it will double in value, to about $4.8 million. There’s nothing stopping the developer from flipping the land for an enormous profit once the change is made, allowing a new owner to apply for a six storey project, but even if that doesn’t happen, if the plan is changed for one developer, others will request changes as well. All heritage corridors in Stratford will be vulnerable.
There are lots of other problems, though. The shadow from the building will have a strong impact on neighbours to the north, along with noise, privacy, and parking light concerns; the 47-car parking lot will heat up the area, and there has been no environmental study done on how this building will affect Queen Street, the entrance street to the Festival Theatre. Finally, it just doesn’t fit into that heritage neighbourhood. It’s too big, and it conflicts with the surrounding architecture. Tourism provides a livelihood for many of us, and we should be conserving our heritage corridors.
But we need affordable housing!
Yes, we do. But it’s unlikely there will be affordable housing in these buildings.. The developer has stated they will be high-end condos. Many believe the condos will be used as summer residences by wealthy Torontonians, or even worse, by Air BNB entrepreneurs. Of course, you can’t be sure, but if housing prices are raised by this change in the Official Plan, it will spark a contagion of development and rising prices.
What are the residents in the area saying?
Residents want the developer to stick to the Official Plan. Chancery’s original proposal was an entire block of 4-storey luxury condominiums, and it faced strong opposition. The proposal you see here is a response to that opposition, reducing the height of the apartments and dividing them in two. It’s a good start, but it’s not enough.
Architect Robert Ritz has proposed a plan that allows for both heritage protection and developer profit. It’s an environmentally sane plan that will showcase the entrance to the Festival Theatre, help lower our greenhouse gas emissions, and allow this mixed residential area to continue as a community. It involves renovating existing buildings as multifamily dwellings, and adding three quadruplex apartment buildings, all of which will fit harmoniously into the neighbourhood.
The alternate plan solves the problem of badly-needed housing, deals with the environmental pollution that would be caused by demolition, and preserves heritage buildings. The two existing homes seen in this illustration are solid red brick; the old Bamboo Restaurant on the corner can be restored to its original state. All buildings can be converted to multi-unit dwellings.
When will this be voted on?
Seventeen citizens spoke out against the Chancery proposal at the meeting of the Planning and Heritage Committee on Monday, October 25 (that’s an unusually high number). SEE THEIR PRESENTATIONS HERE. Many more wrote letters against the proposal. SEE THE LETTERS HERE.
The Planning and Heritage Committee voted for the Chancery proposal. Councillors Ritsma, Gaffney, Seben, and Clifford voted against the proposal, while Mayor Mathieson and Councillors Burbach, Bunting, Beatty, Henderson, Ingram and Vassilakos voted for it. (Votes: 4 against, 7 in favour) The final vote in Council on November 8 remained the same.
On November 22 by-laws to amend the Official Plan to redesignate the land to High Density Residential were approved by Council.
On December 15 a Notice of Appeal was filed by Jim Battle on behalf of Stratford residents, and a campaign began to raise funds for the professional help that is necessary for appelants.
We have now received the notification that October 31, 2022 will be the date of the hearing at the Ontario Land Tribunal. Our neighbourhood is doubling its efforts in our fundraising campaign.
This a crucial moment in the history of our city. Residents have accepted a development that would double the density for this area, but the developer is pushing for a plan that nearly quadruples density. Even more alarming, this is the first time the Official Plan will be changed to accommodate high-density zoning, which will give future developers a precedent. If in the future the City refuses a development on a heritage corridor, the developer has only to appeal to the Ontario Land Tribunal, using the Queen/Trow development as justification for their appeal.
